Журнал

Полезные статьи

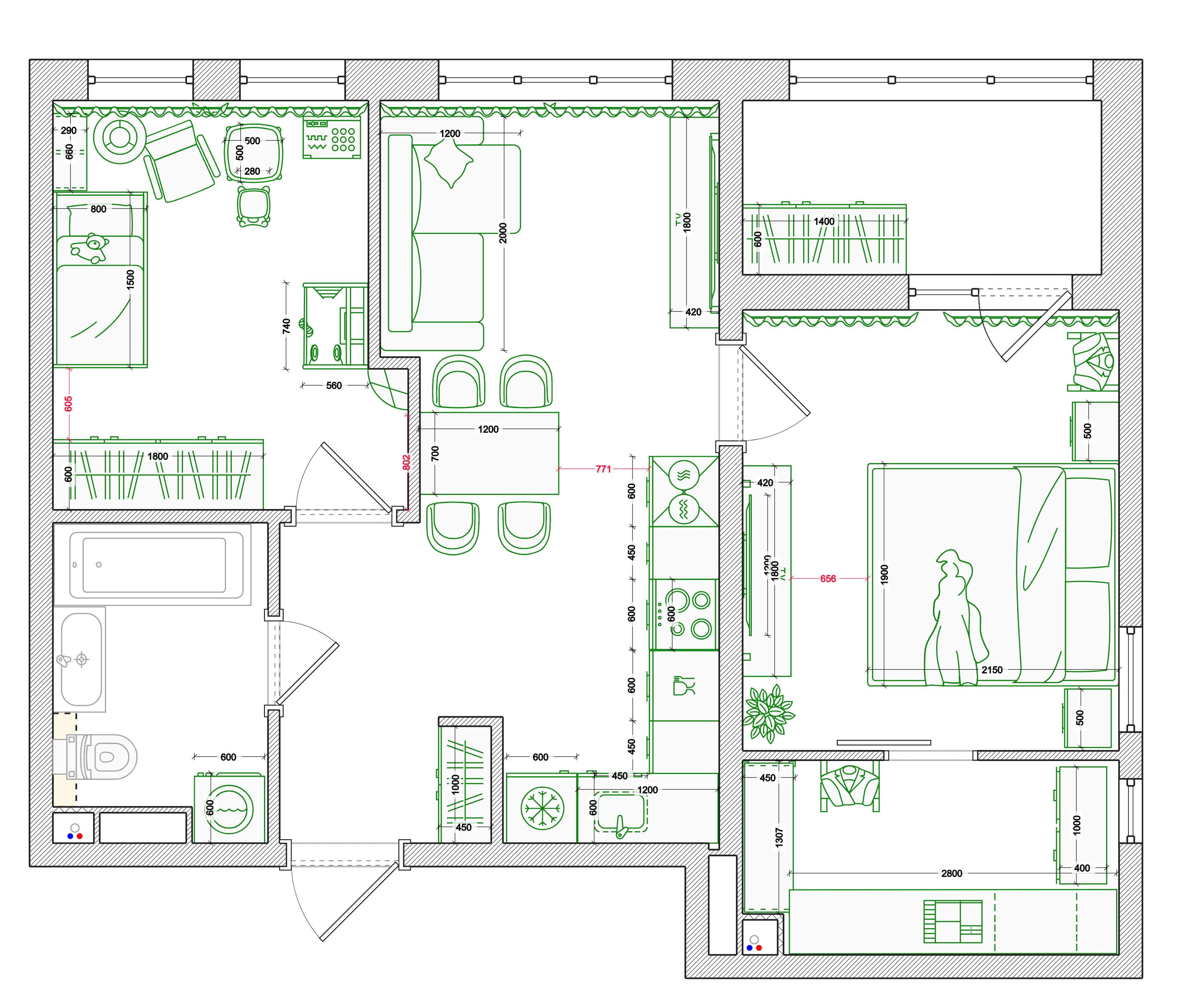
Практичные материалы о планировках, хранении, кухнях и решениях, которые делают квартиру удобнее для семьи.

Надежда Климина в интерьере
Как сделать хранение в квартире удобным

1 февраля 2026 г.

Как сделать хранение в квартире удобным

Почему шкафов может быть много, а порядка все равно нет, и как продумать хранение под реальные привычки.

Читать
5 ошибок в планировке кухни для семьи

20 января 2026 г.

5 ошибок в планировке кухни для семьи

Что чаще всего мешает кухне быть удобной: проходы, хранение, свет, рабочая поверхность и бытовые мелочи.

Читать
Как спланировать квартиру для семьи с ребенком

12 января 2026 г.

Как спланировать квартиру для семьи с ребенком

Что важно учесть: хранение, детская, кухня-гостиная, рабочее место и удобные ежедневные маршруты.

Читать

Консультация

Хотите понять, как вашей семье будет удобнее жить в квартире?

Разберем планировку, хранение, кухню, детскую и ежедневные сценарии без лишних трат и сложных решений.