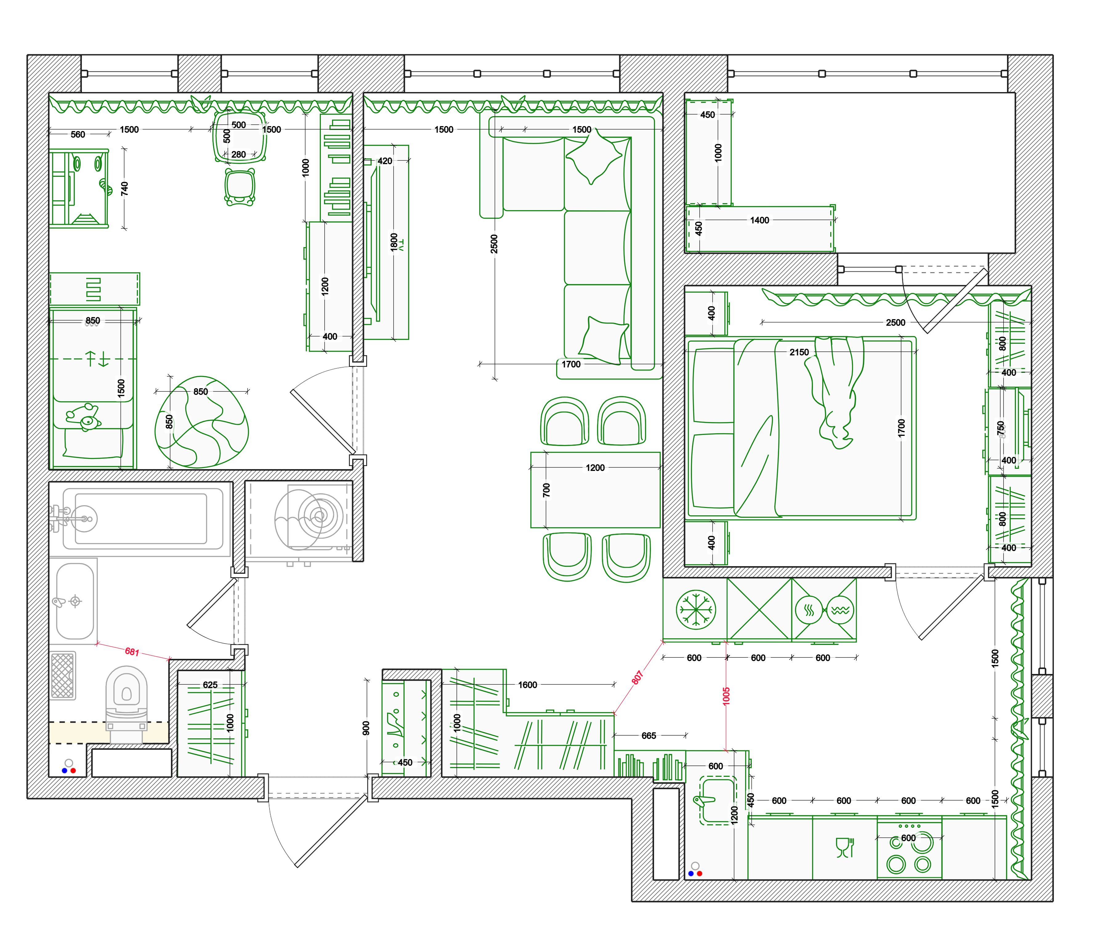
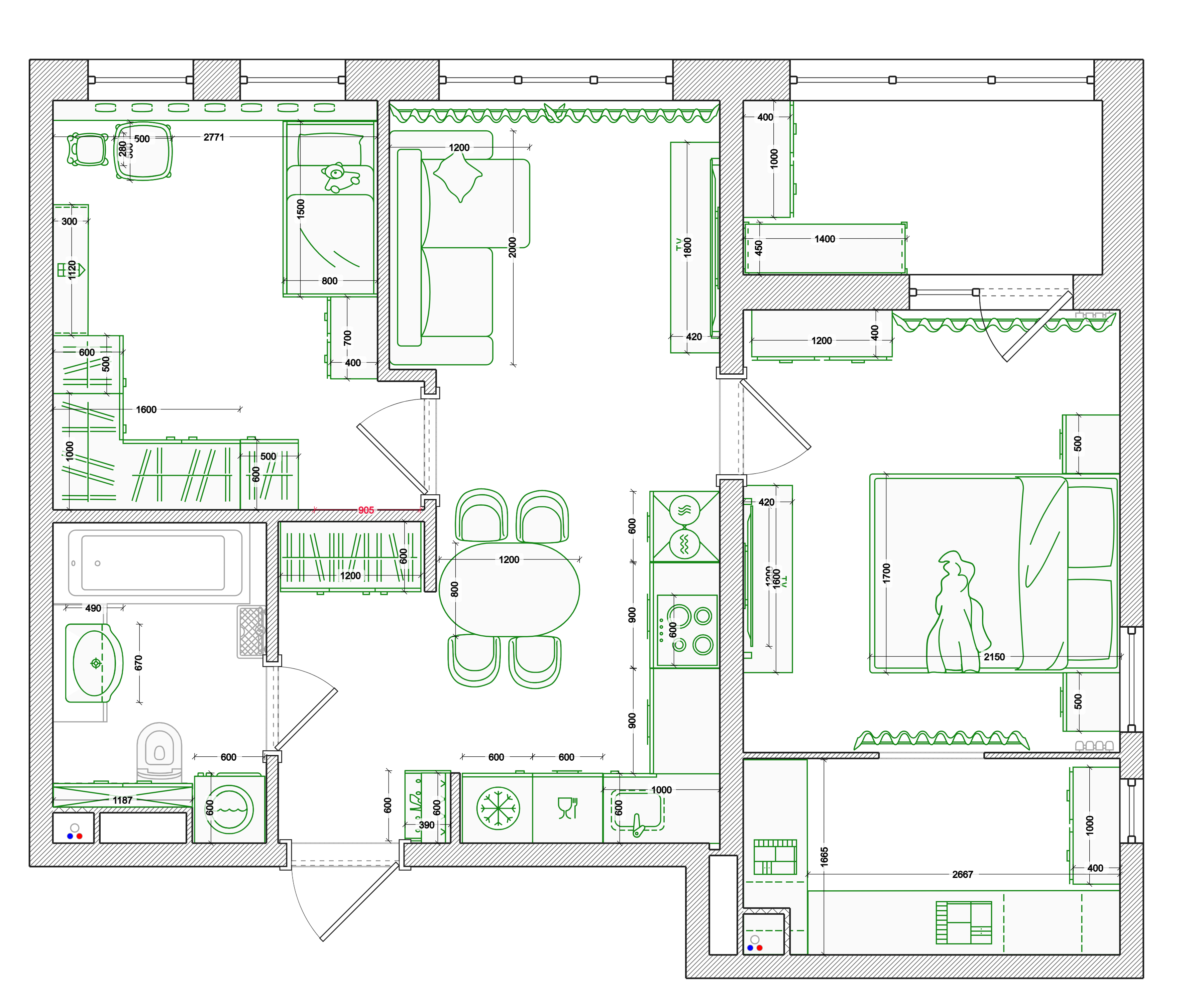
Планировочное решение

Квартира 51,9 м² для семьи с ребенком

Реальный разбор квартиры для трех человек: кухня-гостиная, спальня родителей, детская, хранение и рабочее место школьника.

Квартира 51,9 м² для семьи с ребенком

Задача

Спланировать квартиру 51,9 м² для семьи из трех человек: выделить кухню-гостиную, спальню родителей, детскую, рабочую зону для школьника, места хранения, гардеробную систему, совмещенный санузел и прихожую.

Решение

Было подготовлено пять вариантов планировки. В каждом варианте проверялись проходы, хранение, размещение стиральной машины, размер дивана, кухня на своем месте, детская в школьные годы и удобство ежедневных маршрутов.

Что улучшили

Клиент получил не одну красивую картинку, а понятный выбор: где больше хранения, где просторнее кухня-гостиная, где удобнее санузел, а где появляются ограничения. Это помогает принять решение без лишних трат и переделок.

Материалы проекта

Планировки и визуальные решения

Консультация

Хотите понять, как вашей семье будет удобнее жить в квартире?

Разберем планировку, хранение, кухню, детскую и ежедневные сценарии без лишних трат и сложных решений.